Nemovitosti

Prodej nebytového prostoru s výměrou 133 m2 vč. bytu 1+kk, ul. Přemyslova, Kralupy nad Vltavou

4.790.000 ,-
Celkem 37 fotografií, zobrazit všechny
Prodejce:
realitní makléř: Ivo Loskot
Ivo Loskot
telefon: +420608964672
info@eufinance.cz

Prodej nebytového prostoru s výměrou 133 m2 vč. bytu 1+kk, ul. Přemyslova, Kralupy nad Vltavou

Cena:
4.790.000 ,-
Popis nemovitosti:

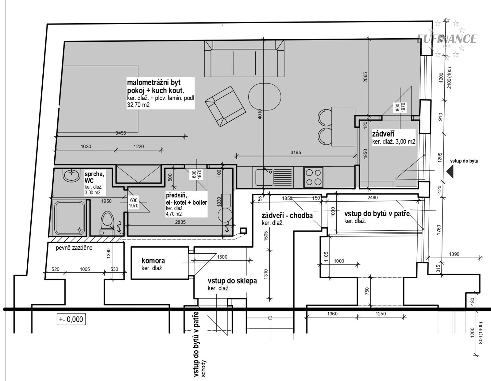
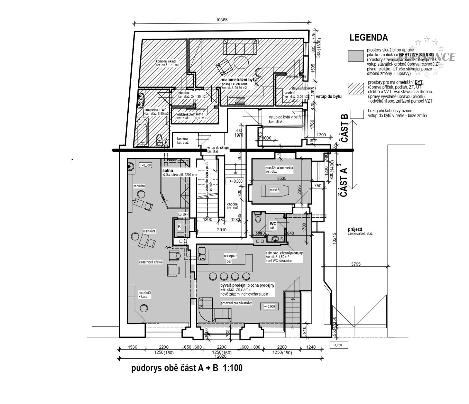
Nabízíme Vám zprostředkování prodeje nebytového prostoru (prodejny) vč. bytu o dispozici 1+kk o celkové výměře 132,6 m2. Oba prostory se nachází ve stejném 1. NP v bytovém domě v obci Kralupy nad Vltavou, ulice Přemyslova. K prodejně i bytu dále náleží společné sklepní prostory a dvě velké nevyužité místnosti, které lze pronajmout samostatně nebo připojit k bytu či k prodejně. Veškeré dispozice bytu, prodejny a úložných prostorů naleznete v přiloženém půdoryse. Parkování je možné zdarma před domem.

Prodejna i bytová jednotka jsou dlouhodobě pronajaté s čistým měsíčním nájmem 19 600,– slušným, dlouhodobým a platícím nájemcům, tak lze pouze převzít sjednané nájemní smlouvy, popř. obě nájemní smlouvy (prodejna i byt) lze vypovědět s tříměsíční výpovědní lhůtou. Nemovitost je vhodná pro investora, který nemovitost jen převezme nájemní smlouvy.

Celá nemovitost má platné Prohlášení vlastníka a je řádně zkolaudována, na vyžádání pošleme emailem. Na prodejnu je dále Stavebním úřadem schválena změna užívání na kosmetické a nehtové studio, nicméně nadále může zůstat stávající využití prodejny.

Bytová jednotka se nachází v zadní části v 1. NP cihlového domu, tudíž nemá okna do ulice (byt bez oken). Byt má zděné jádro, nové rozvody topení a vody v plastu a elektřiny v mědi. V bytě jsou k dispozici veškeré inženýrské sítě, kabelová televize vč. rychlostního internetu. Byt je vytápěn elektro kotlem do radiátorů. Na podlahách je položena dlažba a plovoucí podlaha.

Prodejna má rovněž zděné jádro a veškeré nové rozvody elektřiny, topení i vody, vytápění je plynovým kotlem do radiátorů.

Ve městě Kralupy n.Vlt. je kompletní občanská vybavenost (10 min pěšky): mateřské i základní školy, supermarkety, zdravotní středisko, nemocnice, pošta, banky. Přímo naproti domu se nachází autobusová zastávka, odkud lze dojet na vlakové nádraží nebo PID do Prahy na metro. 12 min pěšky je vzdálené autobusové a vlakové nádraží s přímým spojem 25 min do centra Prahy na Masarykovo či Hlavní nádraží (3 vlaky za hodinu). Právní servis vč. vyřízení úvěru zdarma.
 

Typ nemovitosti:
Komerce
Číslo nemovitosti:
165
Operace:
Prodej
Rezervace:
Rezervováno
Adresa:
Kralupy nad Vltavou
Přemyslova 375
Plocha podlahová:
133 m2
Stav objektu:
Velmi dobrý
Konstrukce:
Cihlová
Umístění objektu:
Sídliště
Komunikace:
Asfaltová
Vydaný certifikát:
G - Mimořádně nehospodárná
Typ certifikátu:
vyhláška č. 264/2020 Sb
Je zobrazena tato GPS souřadnice:
50° 14' 29.121"N, 14° 17' 51.553"E